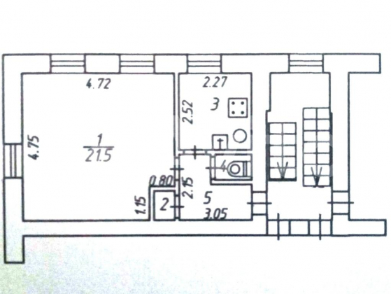
Продается однокомнатная квартира, 32.9 кв.м., 2/2 эт
Обзор№ - 5995
| Стоимость | 2 650 000 |
|---|---|
| Комнат в квартире | 1 |
| Площадь, кв.м. | 32.9 |
| Жилая площадь | 21.5 |
| Площадь кухни, кв.м. | 5.5 |
| Этаж | 2 |
| Эт-ть | 2 |
| Тип дома | Кирпич |
Адрес
| Населенный пункт | Калуга |
|---|---|
| Район города | Московский |
| Улица | улица Тельмана |
| Номер дома | 16 |
Объект 5995. Продается 1-к квартира в районе пл.Московской по ул.Тельмана, 16. Индивидуальное отопление. Состояние жилое, окна новые деревянные, натяжные потолки, новая проводка. Остается мебель частично.

















